naziv projekta: Boutique hotel PARK - interijer
lokacija: Habdelićeva ulica 6, Varaždin
investitor: Gastrocom doo, Varaždin

projekt: 2008 - 2015
realizacija: 2015
bruto površina: 2.300 m2

projektni tim:
Darinka Brakus
Gordana Kovačić
Zoran Brakus
Anja Brakus

art grafike: Ida Ister
foto: Ida Ister; Darko Gorenak



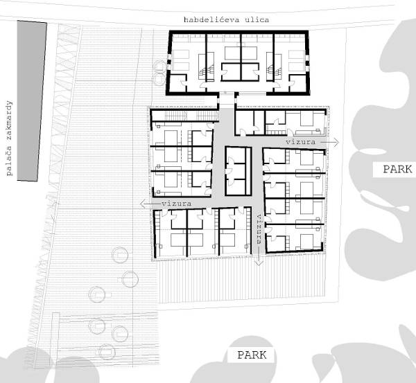
Hotel je definiran kao mali gradski boutique hotel sa 19 smještajnih jedinica, kategorije 4 *. Posebna briga je posvećena dizajniranju soba. Sobe su podjeljene u tri grupe. Svaka grupa soba je nazvana po svojoj specifičnosti. U tom smislu je i prezentacija soba u ponudi hotela različita, a gost ima više mogućnosti pri odabiru sobe. Time je i željeni naslov „boutique hotel“ opravdan. Ideja o definiranju tri različita identiteta grupa soba ostvarena je uskoj suradnji s menadžmentom hotela. Sobe „park“ nalaze se na katu dogradnje, uronjene su u parkovno zelenilo, organizirane su uz hodnike koji sugeriraju putanje gradskih ulica, i nude vizure na bitne točke okruženja u kojem se objekt nalazi. Sobe „gallery“ se nalaze u volumenu potkrovlja ulične građevine, svaka soba ima vlastitu galeriju u prostranom dvoetažnom volumenu.
Specifičnost soba su art grafike koje su autorski rad te se izrađuju i kreiraju za svaku sobu. U sobama „park“ nalaze se grafike inspirirane varaždinskim vedutama. U svakoj sobi istaknut je jedan prepoznatljivi detalj iz povijesne jezgre grada. U sobama „gallery“ art grafikama su ispričane bajkovite varaždinske priče. Svaka soba u hotelu ima prepoznatljiv identitet u kojem se prepoznaje i pamti Varaždin. Vizurama i art grafikama iskorišten je benefit iznimne lokacije hotela u povijesnoj jezgri.





© 2017 Brakus